Located on a favoured residential road just a short walk from the town centre, railway station and within catchment for Greenway school. A wonderful detached family home which has been extended and refurbished to an excellent standard with the highlight being a wonderful open plan kitchen/family/dining room with separate utility room and Southerly garden.
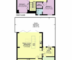
Ground Floor
The spacious reception hall has doors opening to the ground floor accommodation and to the cloakroom which is fitted with a white two piece suite. Stairs rise to the first floor landing area with walk in storage cupboard under. The living room has a bay window to the front while the rear section is dominated by the large open plan kitchen/dining/family room which boast a host of fitted cupboards and drawers and a central island breakfast bar. From here bi-folding doors open to a raised timber deck and a door from the kitchen area also leads to a useful utility room which also has a courtesy door to the garage.
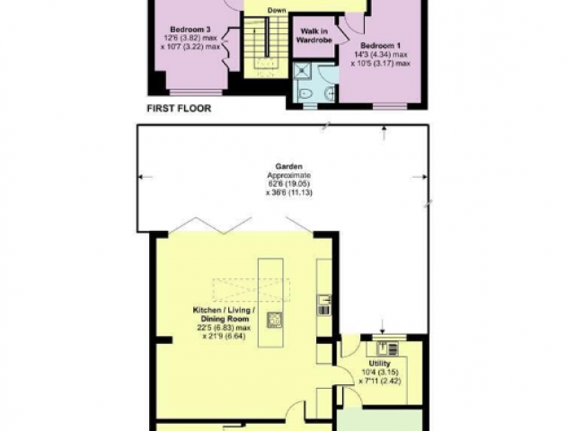
First Floor
The stairs with a glass balustrade rise to the first floor landing area where doors opening to all four double bedrooms and to the family bathroom which boasts a freestanding bath and a walk in shower cubicle. The principal bedroom also boasts an ensuite shower room.
